Villa a schiera in vendita

Mola Di Bari, Contrada Petruso
€ 310.000
4 locali 4 locali
350 Mq 350 Mq
1 bagno 1 bagno

Villa a schiera in vendita

Mola Di Bari, Contrada Petruso

Descrizione annuncio

Mola di Bari - ZONA SAN MATERNO - Sulla strada provinciale 111 per Rutigliano, all'interno di un prestigioso ed esclusivo complesso residenziale di 40 unità abitative totalmente recintato con cancello di ingresso automatico e videocitofono a codice, proponiamo luminosissima villa bifamiliare allo stato rustico di recente costruzione su due livelli con ampi spazi interni ed esterni, dotato di tutti gli allacciamenti delle utenze primarie (acqua, fogna, luce e gas).

La parte abitativa principale di 3 vani e accessori è situata al piano rialzato raggiungibile da un patio d'ingresso di 30 mq ed è composta da ampio soggiorno con angolo cottura e accesso ad un ulteriore patio interno di 60 mq, due camere da letto matrimoniali, cabina armadio e bagno. Tripla esposizione. Terrazzo privato.

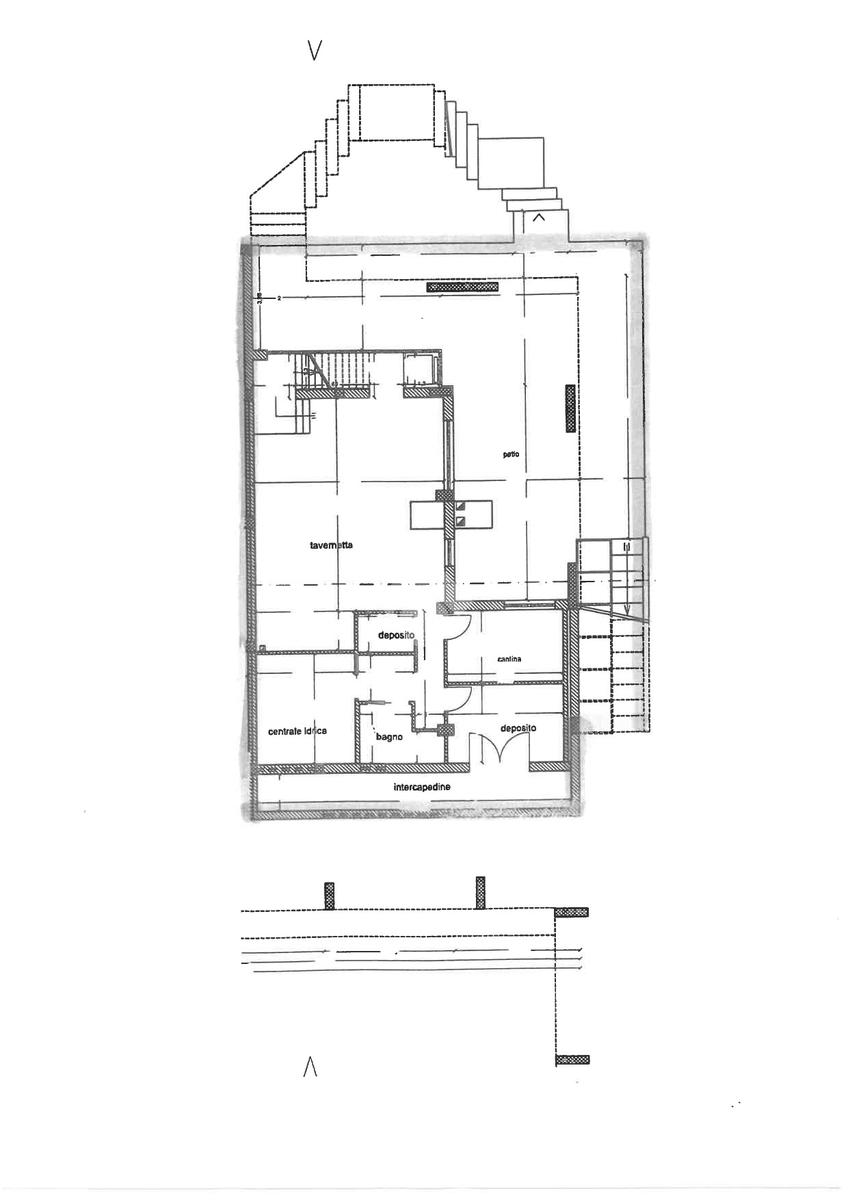
Il piano interrato di mq 240, accessibile tramite comoda scala e ascensore interno, consente la realizzazione di un'ampia e luminosa tavernetta con cantina, bagno, ripostiglio ed ulteriori vani ad uso deposito.

La zona esterna, composta da un terreno agricolo di mq 3000 circa, è ideale per la realizzazione di un ampio giardino, posti auto ed eventule piscina privata.

L'immobile è ubicato in un contesto abitativo estremamente tranquillo e sicuro con ampia possibilità di parcheggio e tutti i comfort che un complesso residenziale moderno può offrire.

Mostra tutto

Nelle vicinanze

Ricariche auto elettriche Ricariche auto elettriche
Agriturismo Terramarebio
1,8 Km
Mostra tutto

Caratteristiche

Rif.:
61164588
Piano:
1 di 2 con ascensore (Piano rialzato)
Posti auto:
5
Balconi:
1
Terrazzi:
1
Camere da letto:
2
Mostra tutto
Prezzo Prezzo
€ 310.000
Rata mutuo Rata mutuo
€ 1.473 / mese
Spese annue Spese annue
€ 1.000
Proponi il tuo prezzoProponi il tuo prezzo

Classe Energetica

G
G
G
G
G
G
G
G
G
EP globale non rinnovabile:
180.00 kW h/m² anno
EP globale rinnovabile:
0.00 kW h/m² anno
EP invernale del fabbricato:
EP estiva del fabbricato:
Anno di costruzione:
2016
Riscaldamento:
Assente

Ti interessa visionare l'immobile?

Fissa un appuntamento  Fissa un appuntamento

Richiedi informazioni

Clicca su Leggi per aprire l'informativa
* Questi campi sono obbligatori

Calcola il tuo mutuo

Semplice e senza impegno
Anticipo

( % )
Mutuo

( % )

pochi semplici passi

inserisci i tuoi dati
Questionario completato
Grazie per aver richiesto un appuntamento senza impegno con un nostro Consulente del Credito e Assicurativo.

Hai inserito correttamente tutti i dati necessari e a breve riceverai una e-mail con un link da convalidare per inviare i tuoi dati.
Affiliato
Studio Torre A Mare Srl
Via Adriatica, 2 70126 Bari (BA)

Il nostro staff


  • Fabio Signorile
    Affiliato

  • Riccardo Perez
    Collaboratore
Via Adriatica, 2 70126 Bari (BA)
Zona: Bari-Torre a Mare-Parchitello-San Giorgio
Mostra su mappa
Orari: lunedi-venerdì 09:00-13:00 16:00-20:30; sabato 09:00-13:00
Affiliato
Studio Torre A Mare Srl
Via Adriatica, 2 70126 Bari (BA)

2026 Tecnocasa Franchising S.p.A. - P. IVA 08365160152 - Via Monte Bianco 60/A 20089 Rozzano (MI). Ogni agenzia ha un proprio titolare ed è autonoma. Privacy policy | Policy utilizzo | Cookie policy